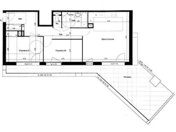
Place Wilson / Parc Tête d’Or Au sein d’une résidence BBC de standing datant de 2016, au 6ème étage avec ascenseur, découvrez ce T3 récent de 70m², baigné de lumière, prolongé par une TERRASSE PLEIN CIEL de 37m².
À proximité immédiate du métro Charpennes ainsi que des lignes de tramway T1, T4 (accès direct à la gare SNCF Part-Dieu) et désormais T6, lappartement bénéficie dune desserte particulièrement pratique. Les établissements scolaires, de lécole primaire à la prestigieuse université Claude Bernard, le célèbre Parc de la Tête d’Or ainsi que les principaux axes routiers sont rapidement accessibles. Le quartier profite également dun cadre de vie agréable avec un marché organisé trois fois par semaine et de nombreux commerces de proximité facilitant le quotidien.
LOGEMENT :
– Séjour de 28m², exposé plein sud, cuisine ouverte entièrement équipée
– Deux chambres confortables en parquet (11 et 12 m²), dont une bénéficiant d’un accès privé aux extérieurs
– Salle deau contemporaine, douche à litalienne, espace sèche-linge, WC séparés
– Terrasse exceptionnelle de 36m², au calme sur cour intérieure, idéale pour profiter des beaux jours
– Huisseries en double vitrage, volets roulants électriques, excellent DPE classé B
Local à vélos au sein de la résidence.
Possibilité dacquérir en sus un ou deux garages sécurisés en sous-sol.
Bien soumis au statut de la copropriété. Honoraires d’agence à la charge du vendeur.
Contactez l’agence SALENGRO IMMO (13 Place Wilson 69100 Villeurbanne) au 04.81.91.60.46.
– Montant estimé des dépenses annuelles d’énergie pour un usage standard : Entre 470 Euros et 700 Euros par an. Prix moyens des énergies indexés au 1er janvier NC (abonnement compris)


















